Traditional houses
LK&1637
PLAN DESCRIPTION
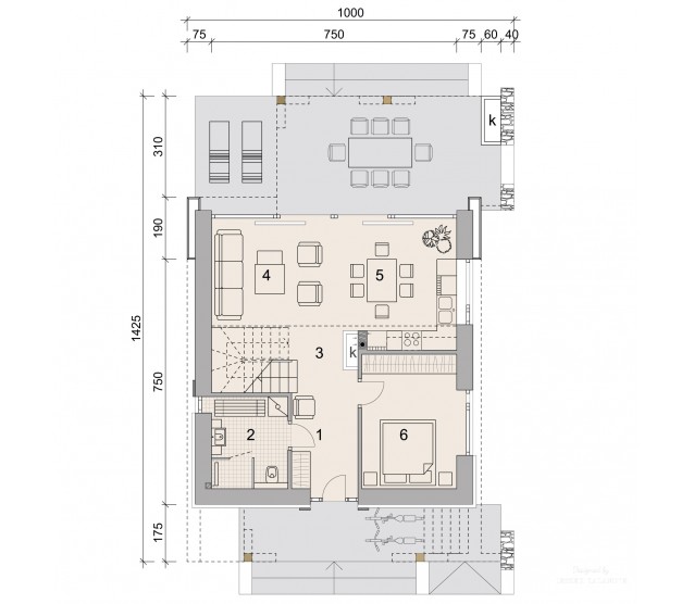
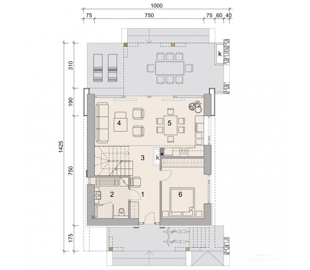
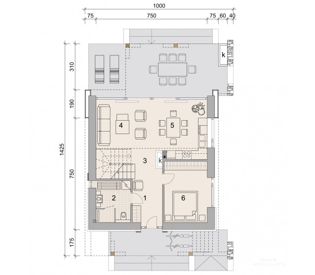
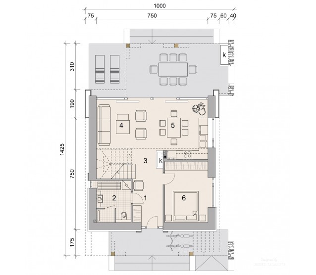
FLOOR PLANS

Ground floor


Attic


FULL SPECS & FEATURES
1. Usable area78,46 m²
2. Total surface176,75 m²
3. Building area89,05 m²
4. Net volume348,25 m³
5. Gross volume524,54 m³
6. Building height8,95 m
7. Roof angle45 °
8. Roof area142,00 m²
9. Сeiling height2,55; 5,00 m
10. Minimum plot size25,15 x 31,30 m


If you need more information, please feel free to contact us.
Email: vino@jncnhomes.com