Barnhouses
LK&1346
PLAN DESCRIPTION
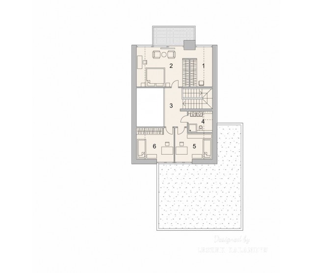
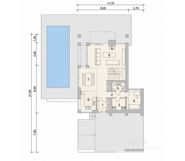
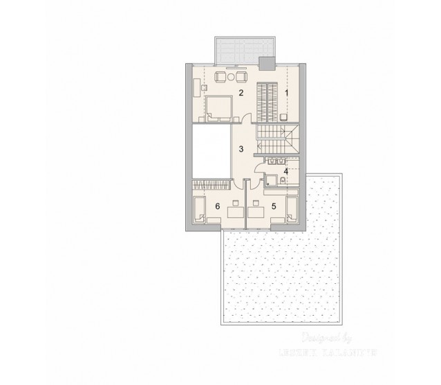
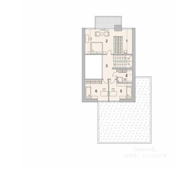
FLOOR PLANS

Ground floor

Attic


FULL SPECS & FEATURES
1. Usable area137,88 m²
2. Total surface215,88 m²
3. Building area127,61 m²
4. Net volume506,64 m³
5. Gross volume645,7 m³
6. Building height9,5 m
7. Attic wall height1,2 m
8. Roof angle43 °
9. Сeiling height2,70 m; 2,80 m
10. Minimum plot size29 x 22,7 m


If you need more information, please feel free to contact us.
Email: vino@jncnhomes.com