Traditional houses
LK&1594
PLAN DESCRIPTION
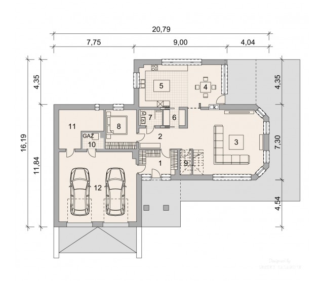
FLOOR PLANS

Ground floor

Floor

Attic


FULL SPECS & FEATURES
1. Usable area260,64 m²
2. Additional area65,98 m²
3. Total surface525,10 m²
4. Building area228,48 m²
5. Net volume1205,00 m³
6. Gross volume1702,00 m³
7. Building height11,30 m
8. Attic wall heightm
9. Roof angle40 °
10. Сeiling height2,95; 2,80 m
11. Minimum plot size24,19 x 28,79 m


If you need more information, please feel free to contact us.
Email: vino@jncnhomes.com