Traditional houses
LK&1574
PLAN DESCRIPTION
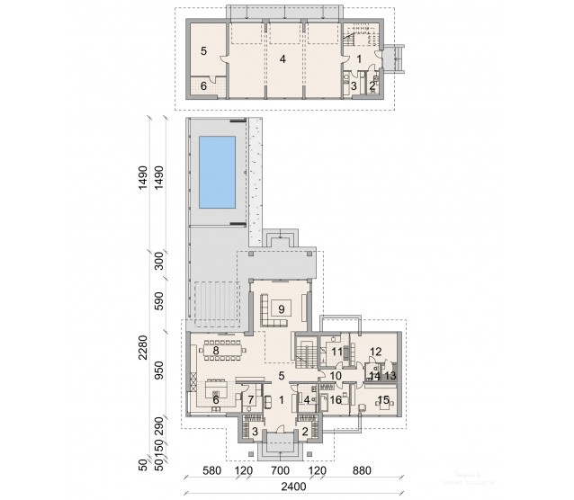
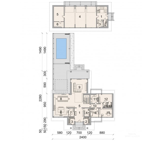
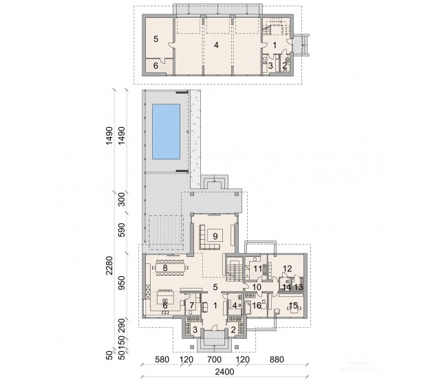
FLOOR PLANS

Basement

Ground floor

Floor

 


FULL SPECS & FEATURES

If you need more information, please feel free to contact us.
Email: vino@jncnhomes.com