Modern houses
LK&1570
PLAN DESCRIPTION
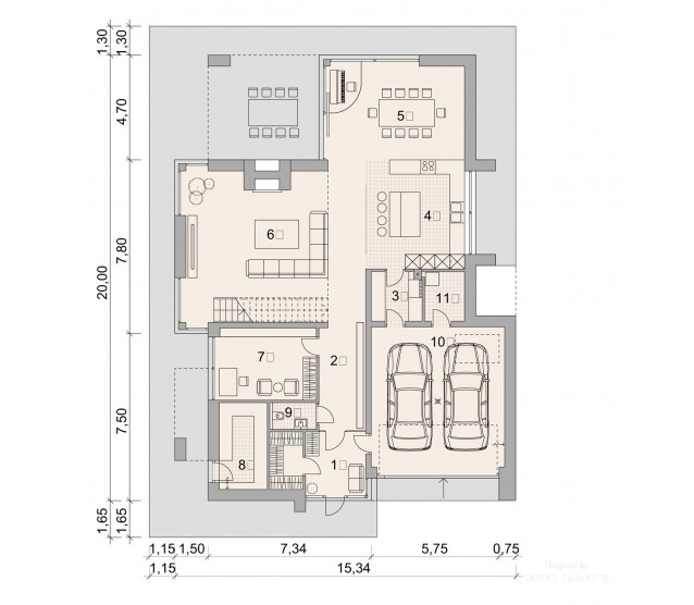
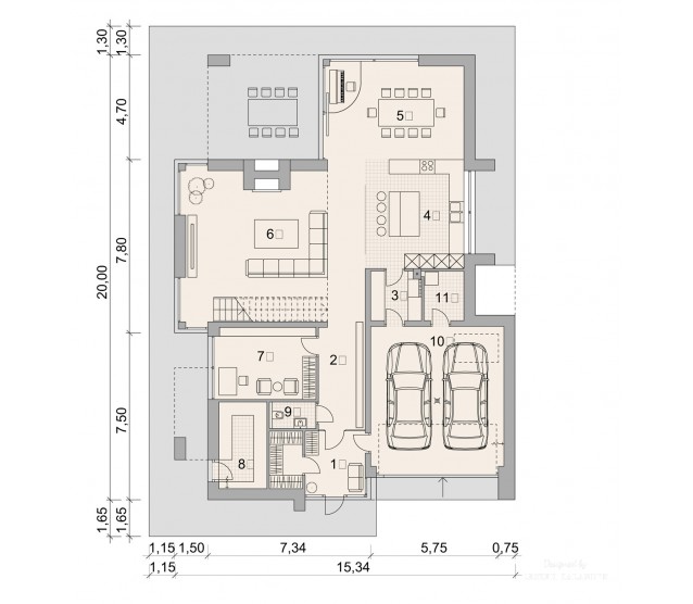
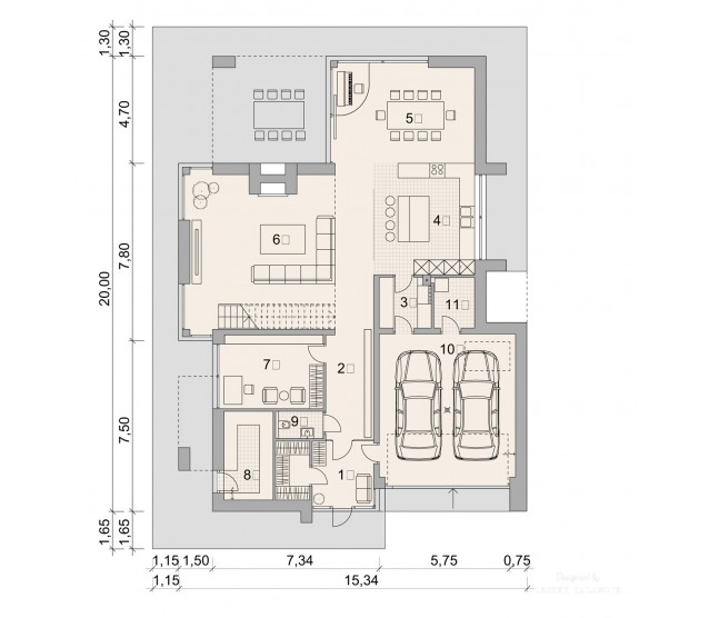
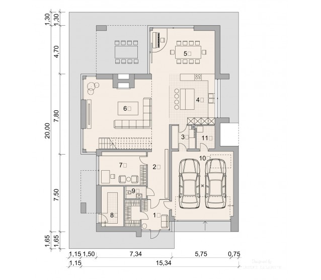
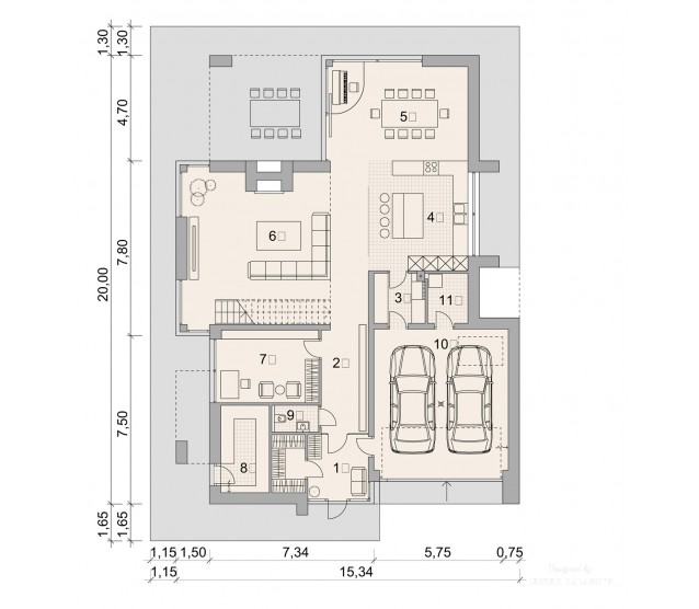
FLOOR PLANS

Ground floor

Floor


FULL SPECS & FEATURES
1. Usable area281,19 m²
2. Area garage37,05 m²
3. Additional area3,66 m²
4. Total surface422,18 m²
5. Building area240,39 m²
6. Net volume921,00 m³
7. Gross volume1402,00 m³
8. Building height9,00 m
9. Roof angle35 °
10. Сeiling height2,81; 2,75 m
11. Minimum plot size22,34 x 28,00 m


If you need more information, please feel free to contact us.
Email: vino@jncnhomes.com