Modern houses
LK&1137
PLAN DESCRIPTION
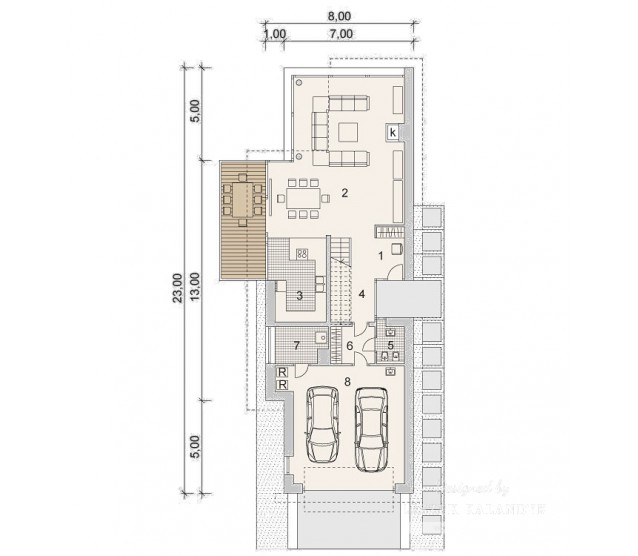
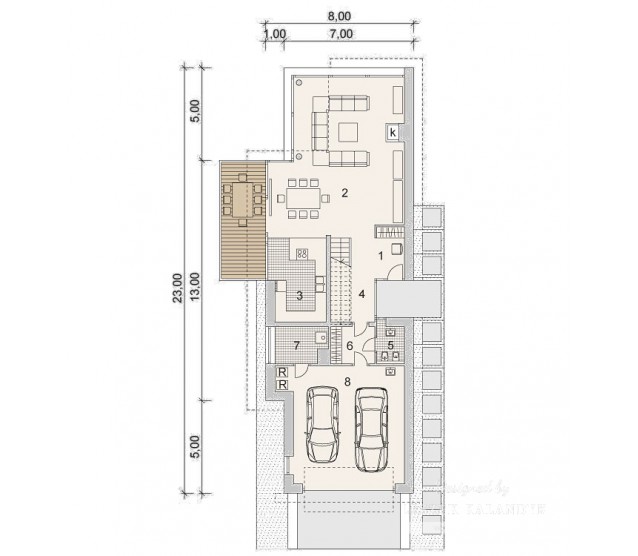
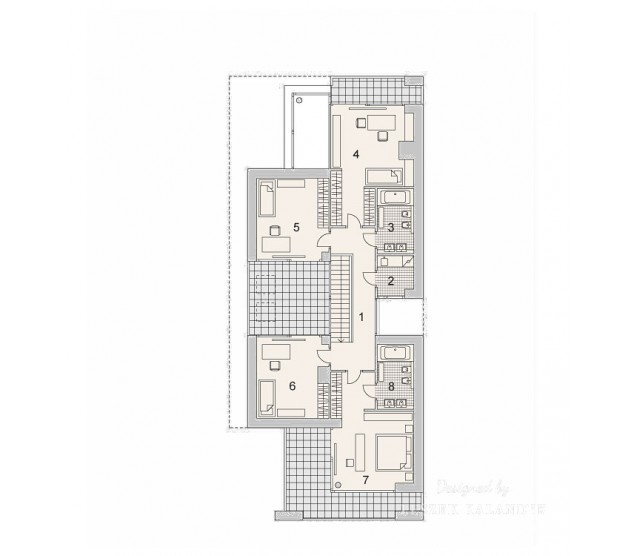
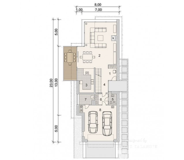
FLOOR PLANS

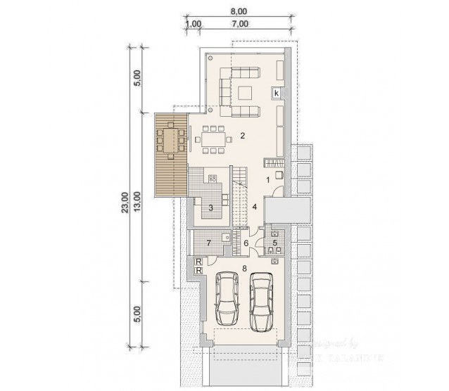
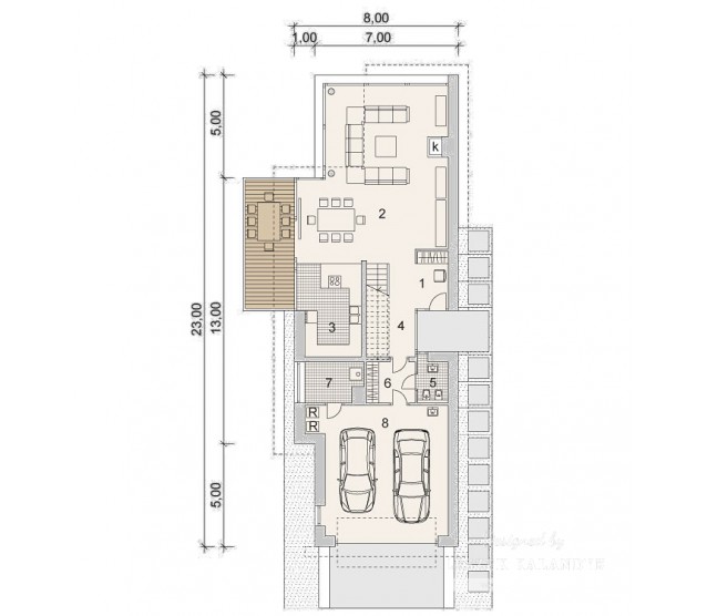
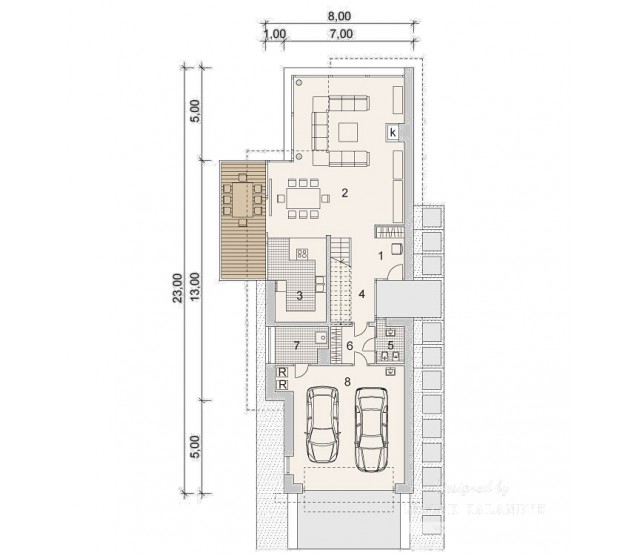
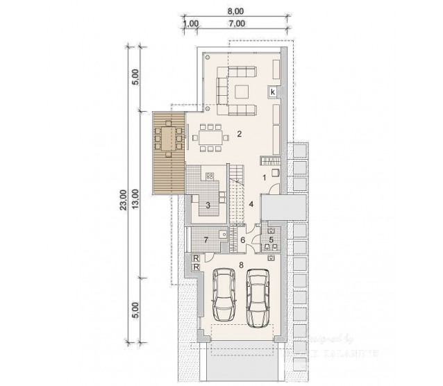
Ground floor

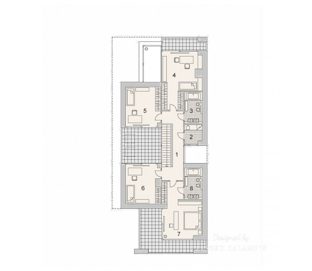
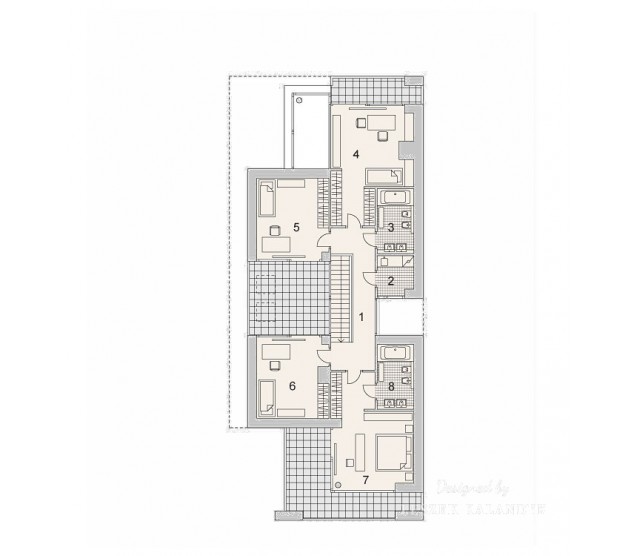
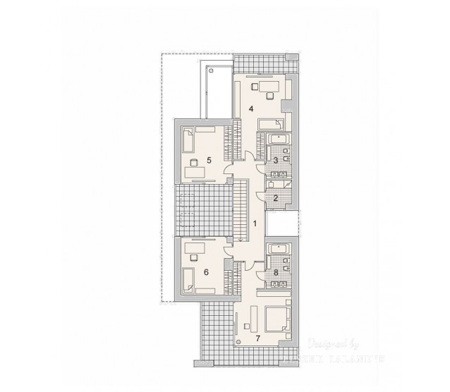
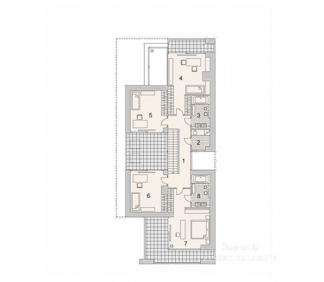
Floor


FULL SPECS & FEATURES
1. Usable area187,18 m²
2. Area garage39,69 m²
3. Additional area5,32 m²
4. Total surface337,33 m²
5. Building area170,03 m²
6. Net volume772,04 m³
7. Gross volume1441,12 m³
8. Energy for heating10,14 kWh/m²*year
9. Building height9,9 m
10. Roof angle35 °
11. Roof area196,58 m²
12. Сeiling height2,7 m
13. Minimum plot size15,5 x 31,5 m


If you need more information, please feel free to contact us.
Email: vino@jncnhomes.com