Villa Anna Maria house plan is an interesting proposition for people with a medium-wide plot. The house is characterized by a typical shape, so its implementation will not require too much financial resources. The project has a ridge located parallel to the road, which is important in terms of development conditions in a given area. It is intended for investors who have a plot of land that allows for the implementation of a free-standing project. It has a two-car garage put forward. The structure of the house is topped with a gable roof, which gives the building a timeless appearance. The project of Willa Anna Maria is a two-story house, which means that its area is clearly divided into zones: day and night. The house has a basement, which is perfect especially for small or narrow plots. The living area included in the project will surely satisfy people who like to enjoy their family moments together. Thanks to the closed kitchen, we will avoid the curious glances of guests, which is especially useful during parties, during which we do not always have a perfect order. The kitchen island included in the design significantly improves the process of preparing meals. The table in the kitchen will make every morning pleasant by spending time with the family. Supporters of practical solutions will undoubtedly be pleased that there is also a place for a pantry. The day zone is also created by a spacious living room with a dining room, thanks to which the household members can integrate in one place. The project includes one comfortable bathroom on the ground floor and two additional bathrooms on the first floor. Four bedrooms are perfect for a family of 4-6 people. The space can also be used as a guest room or office. For people who value open spaces and family life, the mezzanine will certainly be an interesting solution. The terrace is an ideal place to organize family meetings and moments of relaxation. The building was designed in brick technology. Villa Anna Maria is an excellent proposition for investors looking for a traditional house, thanks to which it will fit perfectly into any landscape.
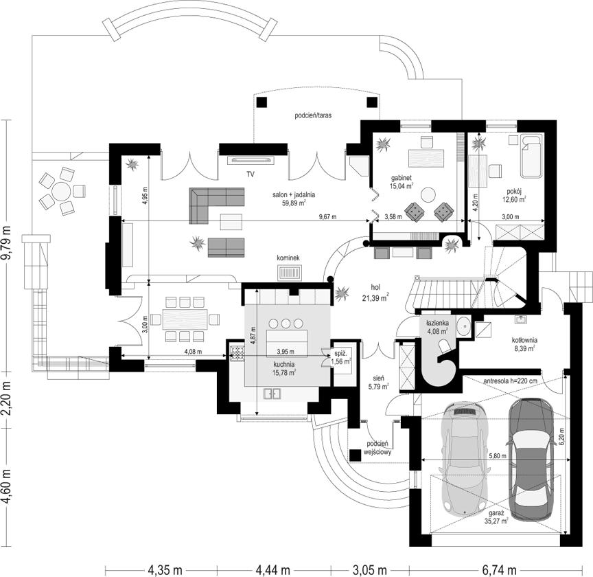
Ground floor

1. Wiatrołap5,79 m2
2. Hall21,39 m2
3. Kuchnia15,78 m2
4. Spiżarnia1,56 m2
5. Pokój dzienny + jadalnia59,89 m2
6. Pokój15,04 m2
7. Pokój12,60 m2
8. Łazienka4,08 m2
9. Kotłownia8,39 m2
10. Garaż dwustanowiskowy35,27 m2
Razem179,79 m2
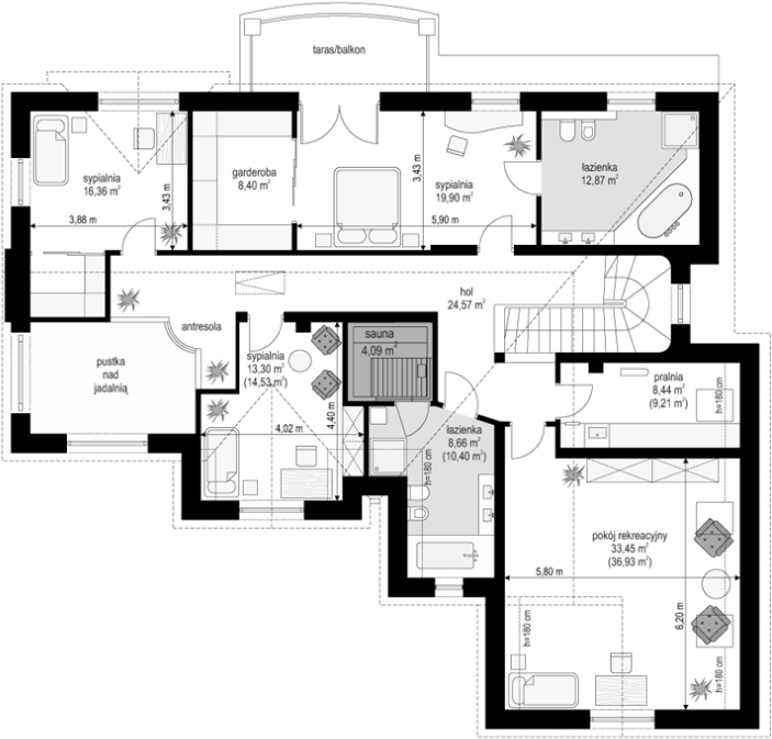
Second floor

1. Hall + antresola24,57 m2
2. Pokój19,90 m2
3. Łazienka12,87 m2
4. Garderoba8,40 m2
5. Pokó16,36 m2
6. Pokój13,30 m2 (14,53 m2)
7. Łazienka8,66 m2 (10,40 m2)
8. Sauna4,09 m2
9. Pokój rekreacyjny33,45 m2 (36,93 m2)
10. Pom. gospodarcze8,44 m2 (9,21 m2)
Razem150,04 m2 (157,26 m2)
If you need more information, please feel free to contact us.
Email: vino@jncnhomes.com