Ground floor

1. Wiatrołap6,58 m2
2. Pokój11,24 m2
3. Pokój dzienny + kuchnia + jadalnia66,13 m2
4. Pokój15,62 m2
5. Łazienka4,28 m2
6. Korytarz5,19 m2
7. Pom. gospodarcze6,08 m2
8. Garaż dwustanowiskowy54,64 m2
9. Spiżarnia4,02 m2
Razem173,78 m2
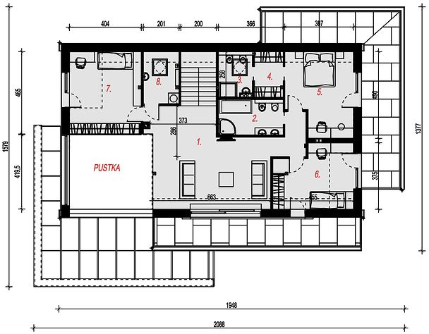
Attic

1. Hall32,20 m2
2. Łazienka7,06 m2
3. Łazienka3,45 m2
4. Garderoba2,98 m2
5. Pokój15,55 m2
6. Pokój12,50 m2
7. Pokój15,96 m2
8. Pom. gospodarcze4,49 m2
Razem94,19 m2
If you need more information, please feel free to contact us.
Email: vino@jncnhomes.com