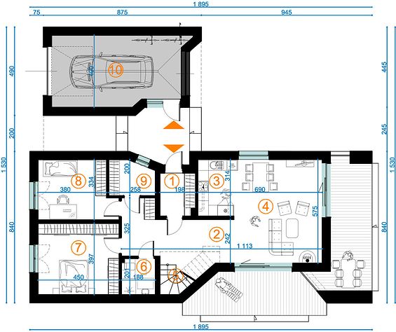
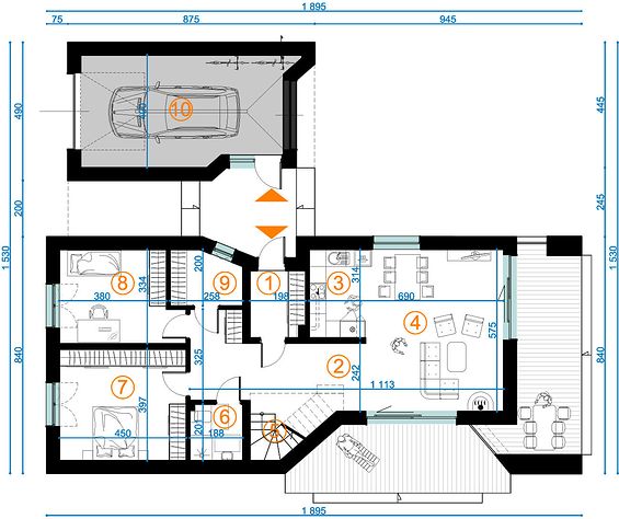
Ground floor

1. Wiatrołap4,65 m2
2. Korytarz17,57 m2
3. Kuchnia6,08 m2
4. Pokój dzienny + jadalnia27,96 m2
5. Schody2,33 m2
6. Łazienka3,55 m2
7. Pokój16,84 m2
8. Pokój12,60 m2
9. Pom. gospodarcze4,62 m2
10. Garaż jednostanowiskowy31,26 m2
Razem127,46 m2
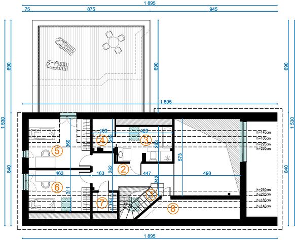
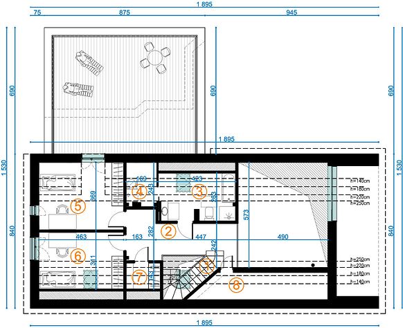
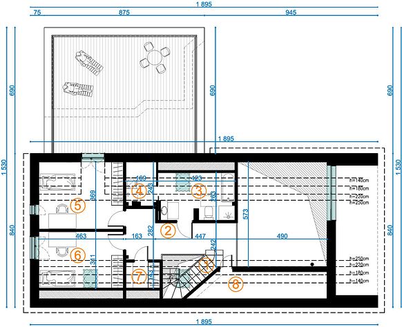
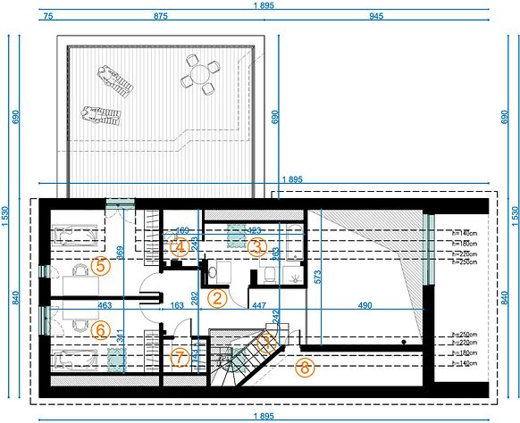
Attic

1. Schody1,97 m2
2. Korytarz12,51 m2
3. Łazienka7,32 m2 (10,42 m2)
4. Pom. gospodarcze1,50 m2 (3,66 m2)
5. Pokój10,81 m2 (14,24 m2)
6. Pokój10,81 m2 (14,24 m2)
7. Garderoba1,25 m2 (2,62 m2)
8. Pom. gospodarcze1,76 m2 (11,65 m2)
Razem47,93 m2 (71,31 m2)
If you need more information, please feel free to contact us.
Email: vino@jncnhomes.com