Ground floor

1. Wiatrołap8,95 m2
2. Hall4,68 m2
3. Łazienka3,56 m2
4. Pokój dzienny18,60 m2
5. Kuchnia + jadalnia11,16 m2
6. Spiżarnia1,12 m2
7. Pom. gospodarcze2,39 m2
8. Kotłownia5,28 m2
9. Garaż dwustanowiskowy32,80 m2
Razem88,54 m2
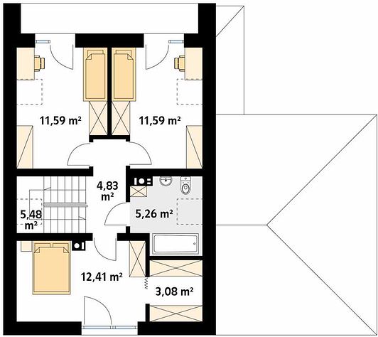
Attic

1. Hall4,83 m2
2. Pokój11,59 m2
3. Pokój11,59 m2
4. Pokój12,41 m2
5. Garderoba3,08 m2
6. Łazienka5,26 m2
7. Schody5,48 m2
Razem54,24 m2
If you need more information, please feel free to contact us.
Email: vino@jncnhomes.com