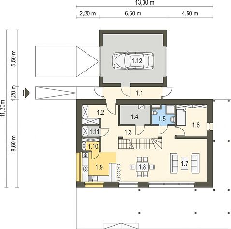
Ground floor

1. Wiatrołap6,56 m2
2. Korytarz6,85 m2
3. Korytarz8,95 m2
4. Pom. gospodarcze5,66 m2
5. Łazienka3,87 m2
6. Pokój9,18 m2
7. Pokój dzienny18,41 m2
8. Jadalnia17,68 m2
9. Kuchnia12,46 m2
10. Spiżarnia2,06 m2
11. Pom. gospodarcze1,97 m2
12. Garaż jednostanowiskowy28,22 m2
Razem121,87 m2
Attic

1. Korytarz7,70 m2
2. Pokój12,61 m2
3. Garderoba8,56 m2
4. Łazienka12,68 m2
5. Pokój14,79 m2
6. Pokój15,76 m2
Razem72,10 m2
If you need more information, please feel free to contact us.
Email: vino@jncnhomes.com