Ground floor

1. Wiatrołap6,27 m2
2. Kotłownia17,02 m2
3. Pokój12,94 m2
4. Pokój dzienny24,30 m2
5. Kuchnia + jadalnia10,15 m2
6. Łazienka4,47 m2
7. Schody
8. Garaż jednostanowiskowy24,38 m2
9. Pom. gospodarcze5,57 m2
Razem105,10 m2
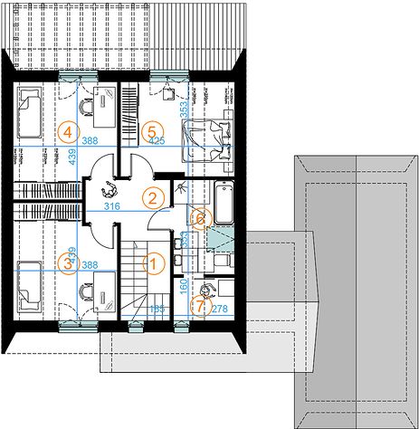
Attic

1. Schody
2. Korytarz6,34 m2
3. Pokój15,91 m2
4. Pokój15,91 m2
5. Pokój14,82 m2
6. Łazienka8,03 m2
7. Pom. gospodarcze3,64 m2
Razem64,65 m2
If you need more information, please feel free to contact us.
Email: vino@jncnhomes.com