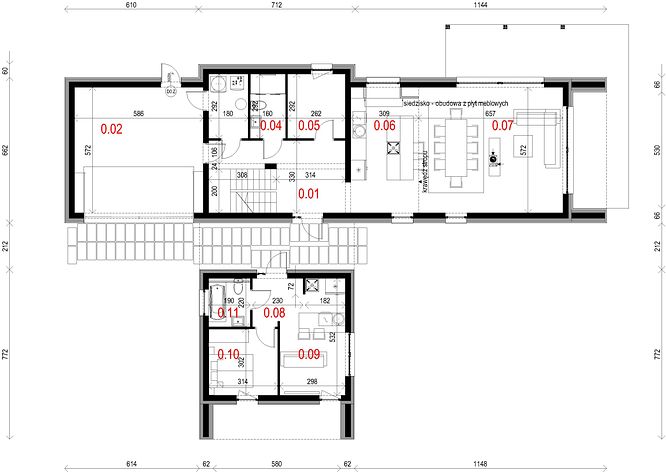
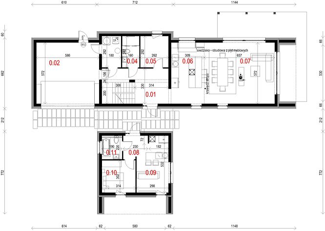
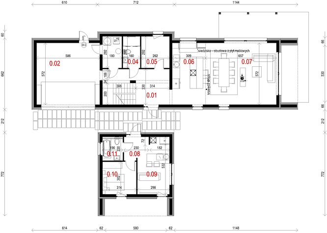
Ground floor

1. Hall20,24 m2
2. Garaż dwustanowiskowy33,17 m2
3. Kotłownia5,11 m2
4. Łazienka4,57 m2
5. Pokój7,48 m2
6. Kuchnia17,41 m2
7. Pokój dzienny + jadalnia37,21 m2
8. Wiatrołap3,93 m2
9. Pokój + kuchnia14,07 m2
10. Pokój9,30 m2
11. Łazienka4,06 m2
Razem156,55 m2
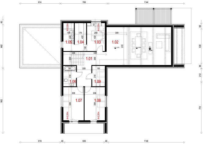
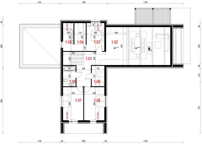
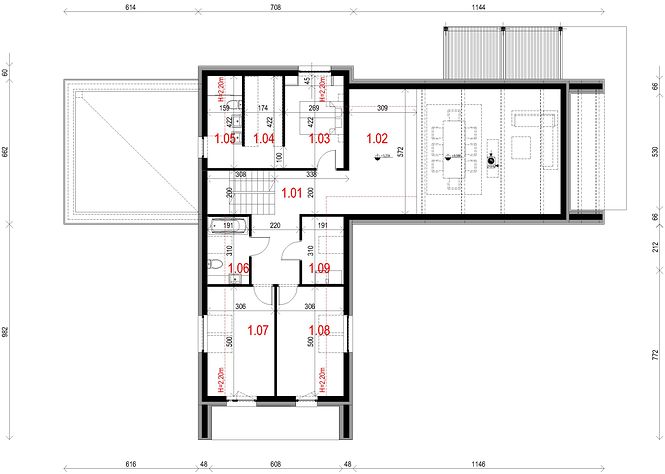
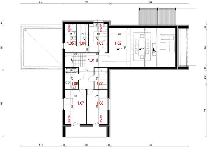
Attic

1. Korytarz12,73 m2
2. Antresola15,01 m2
3. Pokój10,72 m2
4. Garderoba7,16 m2
5. Łazienka5,47 m2
6. Łazienka4,57 m2
7. Pokój13,11 m2
8. Pokój13,11 m2
9. Pom. gospodarcze4,57 m2
Razem86,45 m2
If you need more information, please feel free to contact us.
Email: vino@jncnhomes.com