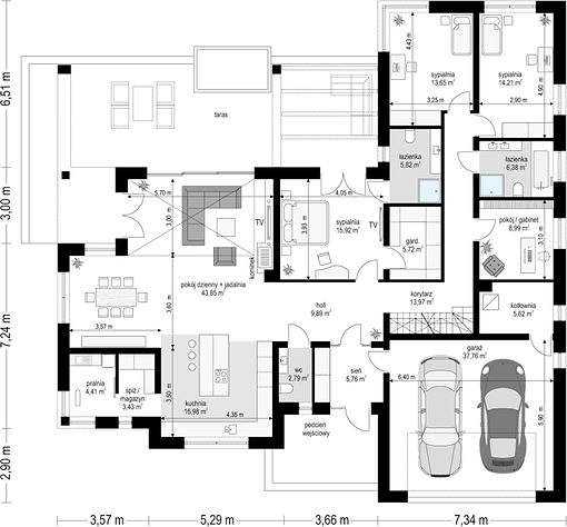
Ground floor

1. Wiatrołap5,76 m2
2. Hall9,89 m2
3. Wc2,79 m2
4. Kuchnia16,98 m2
5. Spiżarnia3,43 m2
6. Pom. gospodarcze4,41 m2
7. Pokój dzienny + jadalnia43,85 m2
8. Pokój15,92 m2
9. Garderoba5,72 m2
10. Łazienka5,82 m2
11. Korytarz13,97 m2
12. Pokój13,65 m2
13. Pokój14,21 m2
14. Łazienka6,38 m2
15. Pokój8,99 m2
16. Kotłownia5,62 m2
17. Garaż dwustanowiskowy37,76 m2
Razem215,15 m2
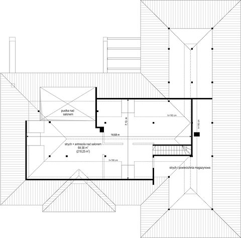
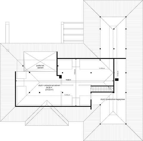
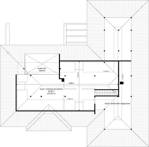
Attic

1. Strych + antresola64,58 m2 (218,25 m2)
2. Strych i magazyn
Razem64,58 m2 (218,25 m2)
If you need more information, please feel free to contact us.
Email: vino@jncnhomes.com