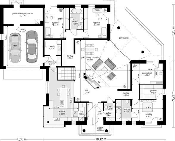
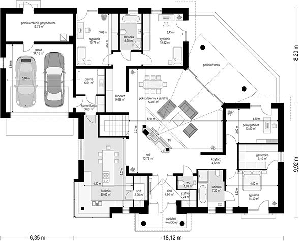
Ground floor

1. Wiatrołap4,91 m2
2. Garderoba2,24 m2
3. Wc1,83 m2
4. Hall13,76 m2
5. Kuchnia25,63 m2
6. Spiżarnia2,95 m2
7. Pokój dzienny + jadalnia53,03 m2
8. Korytarz4,72 m2
9. Pokój13,50 m2
10. Pokój14,40 m2
11. Łazienka7,20 m2
12. Garderoba7,10 m2
13. Korytarz9,68 m2
14. Pokój15,77 m2
15. Łazienka5,95 m2
16. Pokój15,52 m2
17. Garaż dwustanowiskowy34,16 m2
18. Pom. gospodarcze13,74 m2
19. Korytarz3,60 m2
20. Pom. gospodarcze5,51 m2
Razem255,20 m2
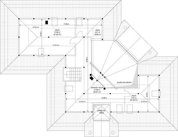
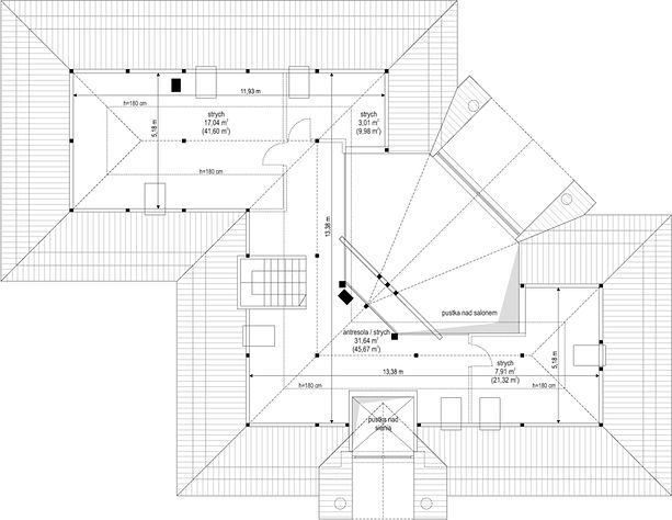
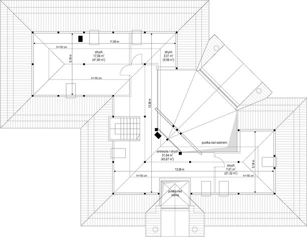
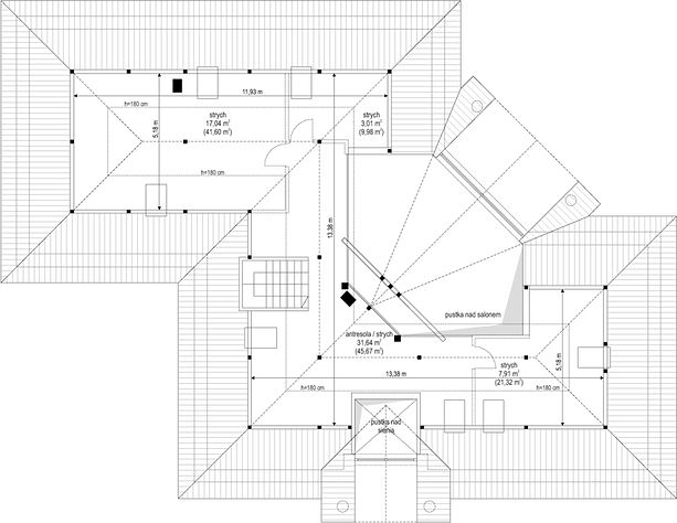
Attic

1. Antresola/strych31,64 m2 (45,67 m2)
2. Strych17,04 m2 (41,60 m2)
3. Strych3,01 m2 (9,98 m2)
4. Strych7,91 m2 (21,32 m2)
Razem59,60 m2 (118,57 m2)
If you need more information, please feel free to contact us.
Email: vino@jncnhomes.com