Ground floor

1. Wiatrołap5 m2
2. Hall8,60 m2
3. Kuchnia10,40 m2
4. Pokój dzienny + jadalnia31,50 m2
5. Łazienka4,20 m2
6. Pom. gospodarcze8,50 m2
7. Schody3,50 m2
8. Pokój11 m2
9. Kotłownia6,60 m2
10. Garaż jednostanowiskowy20,20 m2
Razem109,50 m2
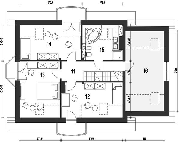
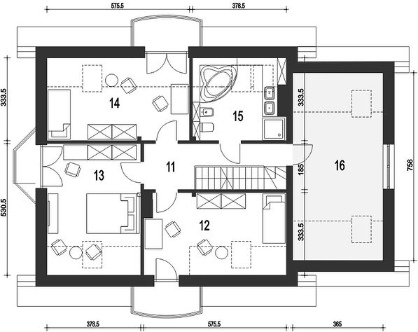
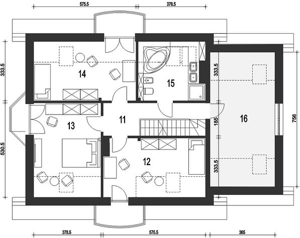
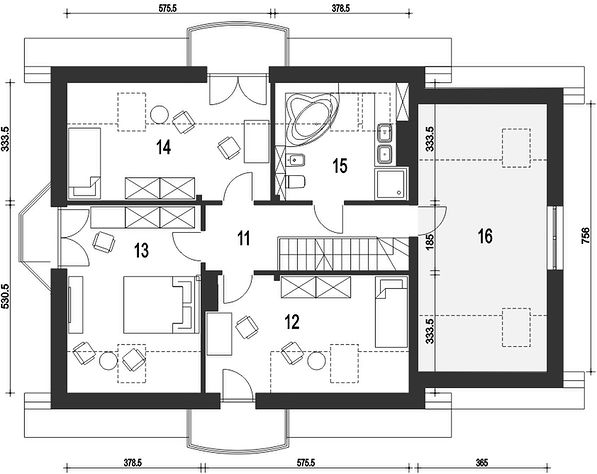
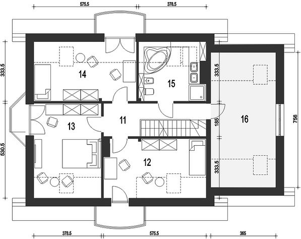
Attic

11. Korytarz7,10 m2
12. Pokój14,70 m2 (18,70 m2)
13. Pokój15,90 m2 (19,80 m2)
14. Pokój14,50 m2 (18,90 m2)
15. Łazienka8 m2 (11,80 m2)
16. Strych14,60 m2 (27,30 m2)
Razem74,80 m2 (103,60 m2)
If you need more information, please feel free to contact us.
Email: vino@jncnhomes.com