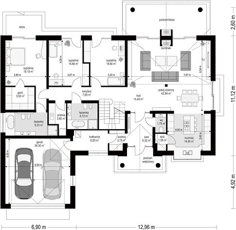
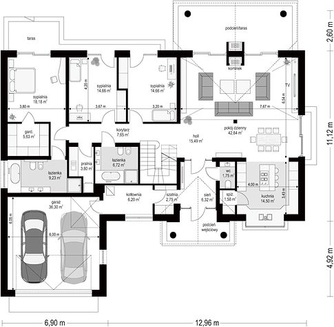
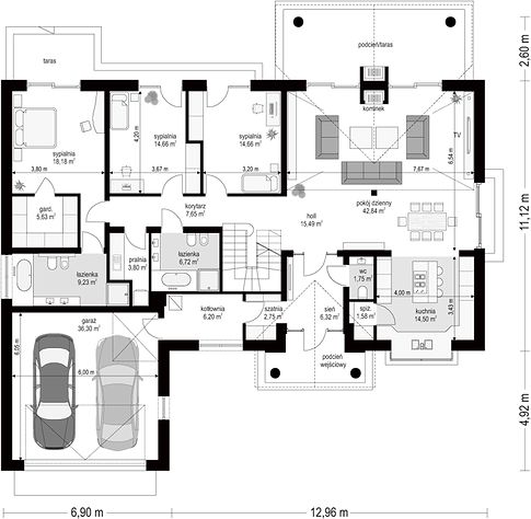
Ground floor

1. Wiatrołap6,32 m2
2. Garderoba2,75 m2
3. Kotłownia6,20 m2
4. Garaż dwustanowiskowy36,30 m2
5. Wc1,75 m2
6. Hall15,49 m2
7. Pokój dzienny42,84 m2
8. Kuchnia14,50 m2
9. Spiżarnia1,58 m2
10. Pokój14,66 m2
11. Łazienka6,72 m2
12. Pokój14,66 m2
13. Pom. gospodarcze3,80 m2
14. Łazienka9,23 m2
15. Pokój18,18 m2
16. Garderoba5,63 m2
17. Korytarz7,65 m2
Razem208,26 m2
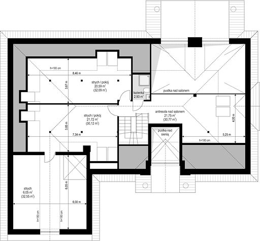
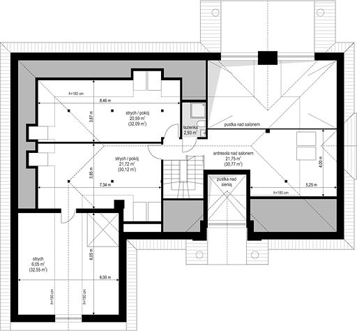
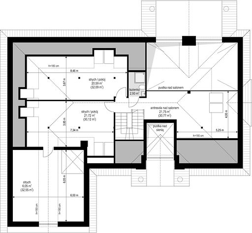
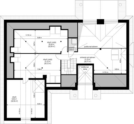
Attic

1. Antresola21,75 m2 (30,77 m2)
2. Łazienka2,93 m2
3. Pokój20,59 m2 (32,09 m2)
4. Pokój21,72 m2 (30,12 m2)
5. Strych6,05 m2 (32,55 m2)
Razem73,04 m2 (128,46 m2)
If you need more information, please feel free to contact us.
Email: vino@jncnhomes.com