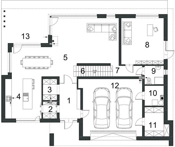
Ground floor

1. Wiatrołap8,07 m2
2. Spiżarnia2,81 m2
3. Garderoba3,51 m2
4. Kuchnia17,42 m2
5. Pokój dzienny + jadalnia52,94 m2
6. Schody4,52 m2
7. Korytarz3,88 m2
8. Pokój22,70 m2
9. Łazienka4,14 m2
10. Pom. gospodarcze4,26 m2
11. Pom. gospodarcze7,30 m2
12. Garaż dwustanowiskowy39,68 m2
13. Taras(43 m2)
Razem171,23 m2
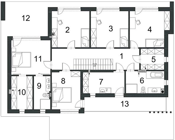
1st floor

1. Korytarz16,21 m2
2. Pokój15,50 m2
3. Pokój15,59 m2
4. Pokój15,51 m2
5. Garderoba5,71 m2
6. Łazienka9,90 m2
7. Pom. gospodarcze9,97 m2
8. Pokój12,38 m2
9. Łazienka6,22 m2
10. Garderoba8,09 m2
11. Pokój15,42 m2
12. Taras(16,57 m2)
13. Balkon(12,93 m2)
Razem130,50 m2
If you need more information, please feel free to contact us.
Email: vino@jncnhomes.com