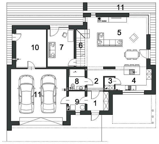
Ground floor

1. Wiatrołap5,36 m2
2. Korytarz6,14 m2
3. Spiżarnia1,66 m2
4. Kuchnia11,08 m2
5. Pokój dzienny38,26 m2
6. Schody5,32 m2
7. Pokój12,78 m2
8. Łazienka4,48 m2
9. Kotłownia4,14 m2
10. Pom. gospodarcze14,86 m2
11. Garaż dwustanowiskowy37,90 m2
12. Taras(35,65 m2)
Razem141,98 m2
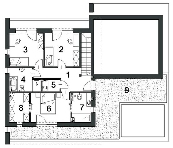
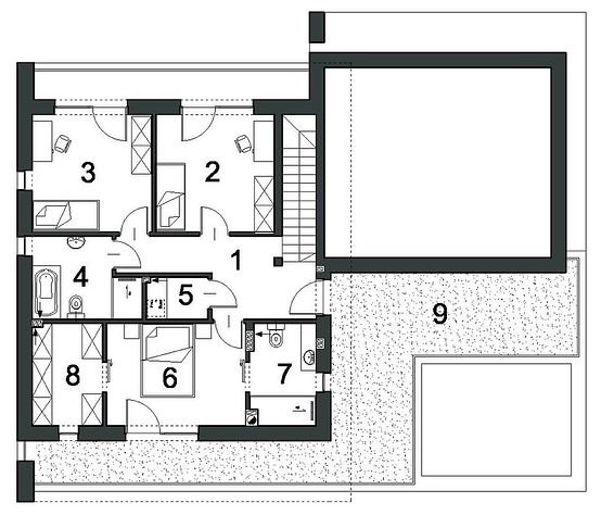
1st floor

1. Korytarz10,02 m2
2. Pokój12,37 m2
3. Pokój12,37 m2
4. Łazienka7,03 m2
5. Pom. gospodarcze2,44 m2
6. Pokój12,62 m2
7. Łazienka5,82 m2
8. Garderoba6,40 m2
9. Taras(38,52 m2)
Razem69,07 m2
If you need more information, please feel free to contact us.
Email: vino@jncnhomes.com