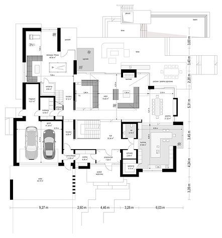
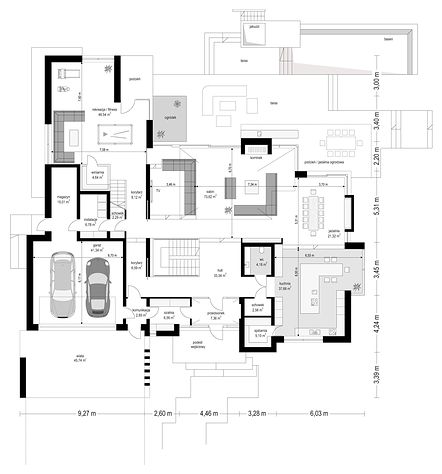
Ground floor

1. Wiatrołap6,74 m2
2. Garderoba6,61 m2
3. Korytarz2,85 m2
4. Korytarz6,45 m2
5. Hall32,52 m2
6. Wc4,20 m2
7. Pom. gospodarcze2,56 m2
8. Spiżarnia4,40 m2
9. Kuchnia38,30 m2
10. Jadalnia21,54 m2
11. Pokój dzienny73,05 m2
12. Korytarz12,30 m2
13. Pokój46,61 m2
14. Winiarnia3,30 m2
15. Pom. gospodarcze2,28 m2
16. Instalacje6,52 m2
17. Pom. gospodarcze9,99 m2
18. Garaż dwustanowiskowy41,34 m2
19. Wiata garażowa dwustanowiskowa(45,74 m2)
Razem321,56 m2
1st floor

1. Hall + antresola30 m2
2. Pustka nad salonem
3. Pokój31,79 m2
4. Garderoba2,77 m2
5. Łazienka6,13 m2
6. Pokój30,32 m2
7. Garderoba(2,77 m2)
8. Łazienka7,20 m2
9. Pustka nad wiatrołapem
10. Pom. gospodarcze21,57 m2
11. Łazienka4,87 m2
12. Kuchnia + pokój10,93 m2
13. Pokój12,32 m2
14. Pokój13,28 m2
15. Garderoba14,58 m2
16. Garderoba7,90 m2
17. Łazienka21,06 m2
18. Pokój34,77 m2
19. Pokój11,71 m2
Razem261,20 m2
If you need more information, please feel free to contact us.
Email: vino@jncnhomes.com