Ground floor

1. Wiatrołap7,83 m2
2. Garderoba5,66 m2
3. Korytarz34,75 m2
4. Pokój16,35 m2 (18,45 m2)
5. Łazienka9,98 m2
6. Pokój32,45 m2
7. Pokój dzienny + jadalnia + kuchnia55,25 m2
8. Pokój rekreacyjny43,28 m2
9. Łazienka5,36 m2
10. Wc2,14 m2
11. Korytarz7,62 m2
12. Pom. gospodarcze7,33 m2
13. Spiżarnia3,28 m2
14. Wc2,69 m2
15. Kotłownia7,83 m2
16. Garaż dwustanowiskowy33,48 m2
17. Taras(12 m2)
18. Taras(58,30 m2)
Razem275,28 m2 (277,38 m2)
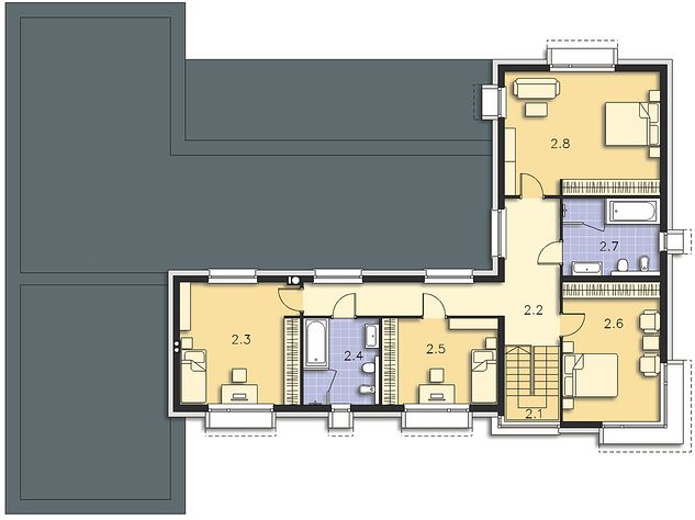
1st floor

1. Schody5,60 m2
2. Korytarz20,27 m2
3. Pokój20,10 m2
4. Łazienka8,87 m2
5. Pokój13,65 m2
6. Pokój18,45 m2
7. Łazienka10,19 m2
8. Pokój26,22 m2
Razem123,35 m2
If you need more information, please feel free to contact us.
Email: vino@jncnhomes.com