Main Level
     
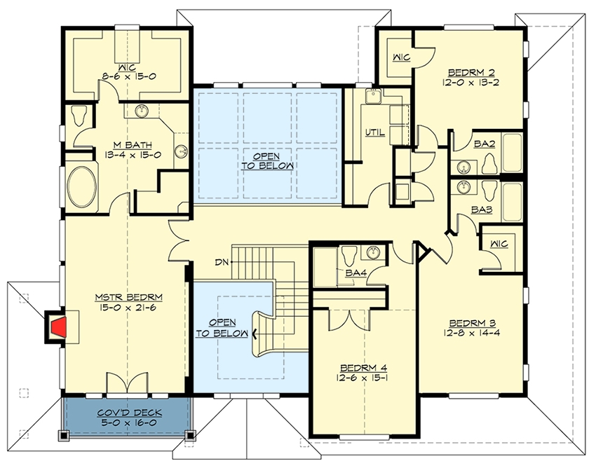
2nd Floor
     
Lower Level
     
    
Total Heated Area:4,043 sq. ft.
1st Floor:2,083 sq. ft.
2nd Floor:1,960 sq. ft.
Covered Patio:140 sq. ft.
Balcony / Veranda:80 sq. ft.
Optional Lower Level:2,091 sq. ft.
Bedrooms:5 or 6
Full Bathrooms:5 or 6
Half Bathrooms:1
Standard Foundations:Basement
Width:67' 4"
Depth:50' 6"
Max Ridge Height:23' 6"
Type:Attached
Area:743 sq. ft.
Count:3 cars
Entry Location:Front
Floor / Height:Lower Level / 9' 0"First Floor / 9' 0"Second Floor / 8' 0"
| Room | Type | Height | 
|---|---|---|
| Great Room | Second Story | 19' 0" | 
| Dining Room | Coffered | 10' 0" | 
| Den | Coffered | 10' 0" | 
| Master Bedroom | Vaulted | |
| Master Bath | Vaulted | 
Primary Pitch:5 On 12
Secondary Pitch:3 On 12
Framing Type:Truss