Main Level
     
2nd Floor
     
    
    
Total Heated Area:3,531 sq. ft.
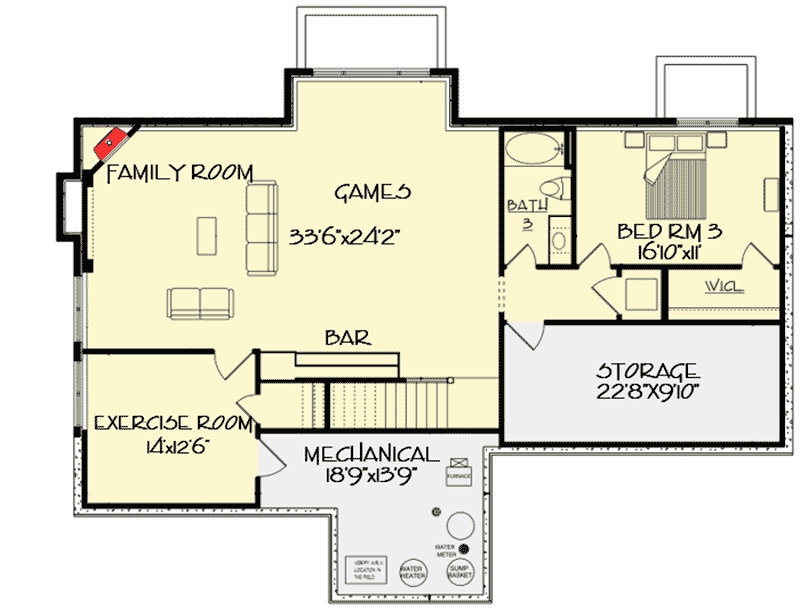
Lower Level:1,656 sq. ft.
1st Floor:1,875 sq. ft.
Basement Unfinished:230 sq. ft.
Bedrooms:3
Full Bathrooms:3
Standard Foundations:Basement, Walkout
Standard Type(s):2x6
Type:Attached
Area:800 sq. ft.
Count:3 cars
Entry Location:Front
Floor / Height:Lower Level / 8' 0"First Floor / 9' 0"
| Room | Type | Height | 
|---|---|---|
| Dining Room | Raised | |
| Great Room | Beamed | 
Primary Pitch:12 On 10
Secondary Pitch:12 On 12
Framing Type:Truss