Main Level
     
2nd Floor
     
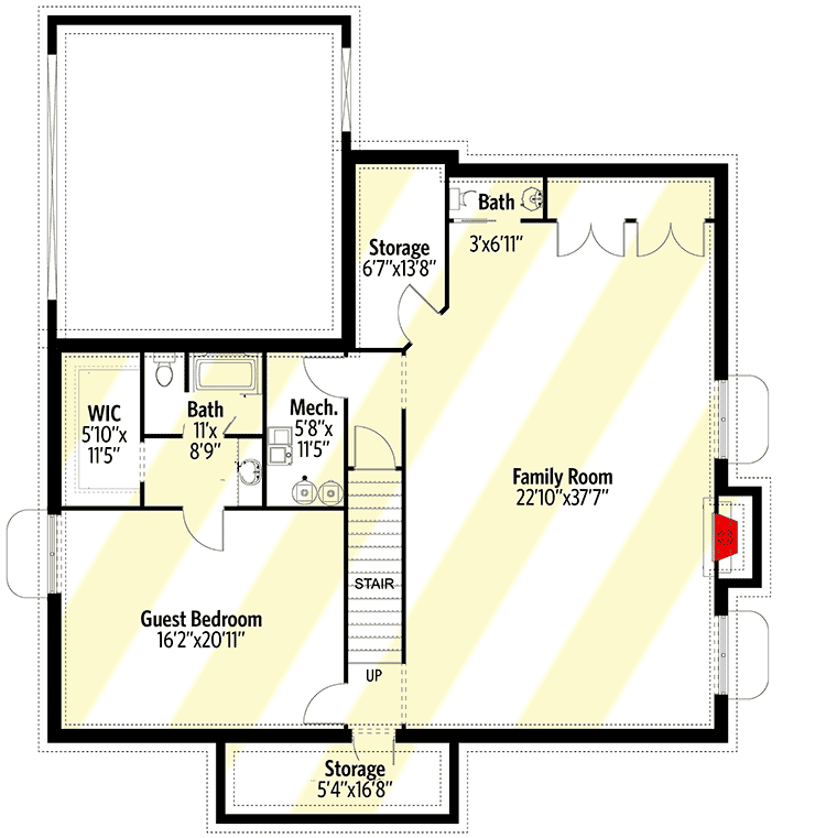
Lower Level
     
    
Total Heated Area:3,724 sq. ft.
1st Floor:2,004 sq. ft.
2nd Floor:1,720 sq. ft.
Optional Lower Level:2,004 sq. ft.
Bedrooms:4 or 5
Full Bathrooms:4
Half Bathrooms:1 or 2
Standard Foundations:Basement
Standard Type(s):2x6
Width:53' 0"
Depth:60' 0"
Max Ridge Height:34' 6"
Floor / Height:Lower Level / 9' 0"First Floor / 10' 0"Second Floor / 10' 0"
Primary Pitch:12 On 12
Secondary Pitch:10 On 12
Framing Type:Truss