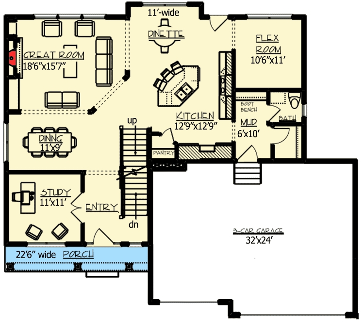
Main Level

2nd Floor

Lower Level

Total Heated Area:3,122 sq. ft.
1st Floor:1,404 sq. ft.
2nd Floor:1,718 sq. ft.
Optional Lower Level:915 sq. ft.
Basement Unfinished:417 sq. ft.
Bedrooms:4 or 5
Full Bathrooms:3 or 4
Half Bathrooms:1
Standard Foundations:Walkout
Standard Type(s):2x6
Width:55' 0"
Depth:51' 0"
Max Ridge Height:35' 0"
Type:Attached
Area:750 sq. ft.
Count:3 cars
Entry Location:Front
Floor / Height:Lower Level / 8' 0"First Floor / 9' 8"
| Room | Type | Height |
|---|---|---|
| Master Bedroom | Vaulted |
Primary Pitch:8 On 12
Secondary Pitch:10 On 12
Framing Type:Truss