Modern houses
PLAN 23-2645
PLAN DESCRIPTION
FLOOR PLANS

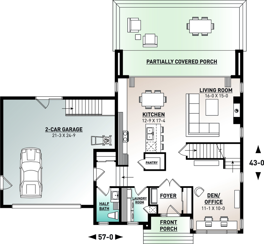
Floor Plan - Main Floor Plan


Floor Plan - Upper Floor Plan


FULL SPECS & FEATURES

Basic Features

Bedrooms : 3

Baths : 2.5

Stories: 2

Garages: 2

Dimension

Depth : 43'

Height : 22' 8"

Width : 57'

Area

Total : 2042 sq/ft

Garage : 650 sq/ft

Main Floor : 1122 sq/ft

Porch : 335 sq/ft

Upper Floor : 920 sq/ft

*Total Square Footage only includes conditioned space and does not include garages, porches, bonus rooms, or decks.

Ceiling

Main Ceiling : 9'

Upper Ceiling Ft : 9'

Roof

Roof Framing : Truss

Roof Type : Asphalt

Exterior Wall Framing

Exterior Wall Finish : Stucco & Siding

Framing : 2 x 6

Bedroom Features

Upstairs Bedrooms

Upstairs Master Bedrooms

Kitchen Features

Eating Bar

Kitchen Island

Walk In Pantry Cabinet Pantry

Additional Room Features

Great Room Living Room

Main Floor Laundry

Mud Room

Garage Features

Front Entry Garage

Outdoor Spaces

Covered Front Porch

Covered Rear Porch


If you need more information, please feel free to contact us.
Email: vino@jncnhomes.com