Manors houses
LK&748
PLAN DESCRIPTION
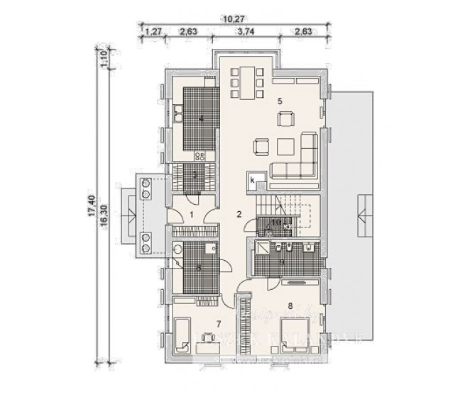
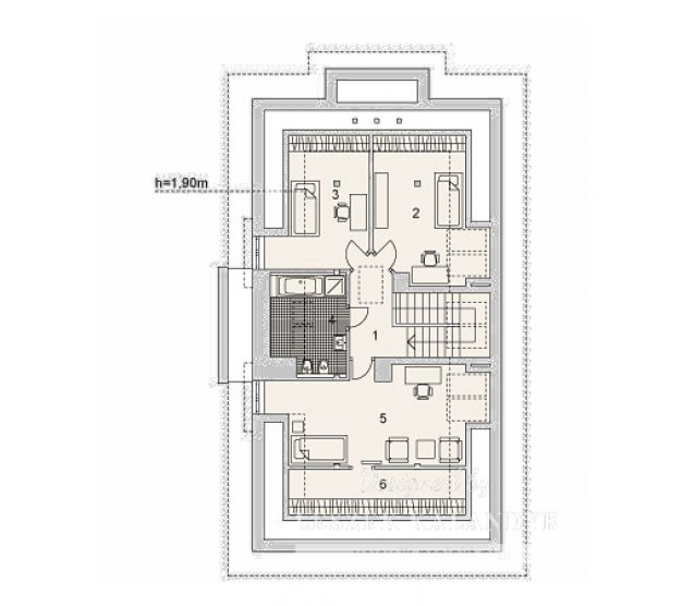
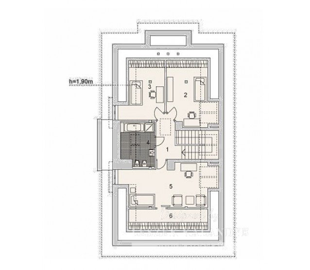
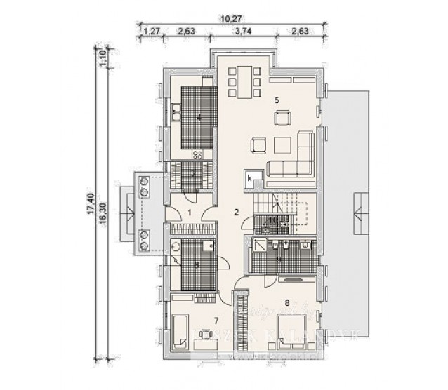
FLOOR PLANS

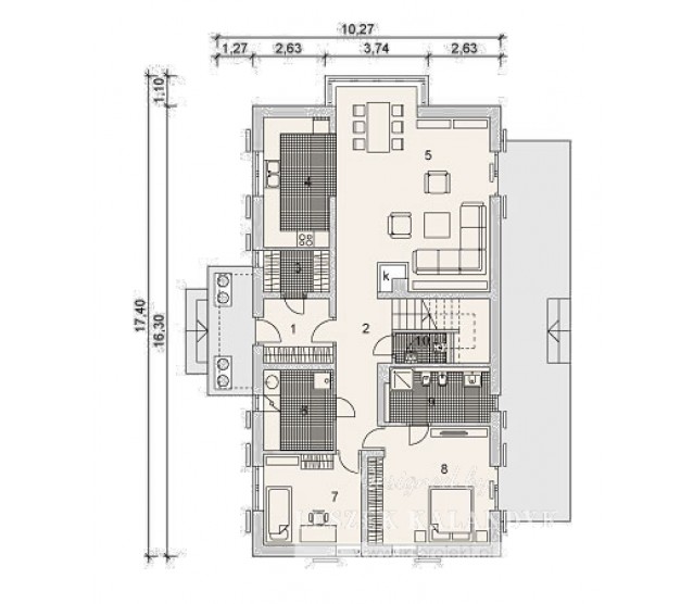
Ground floor

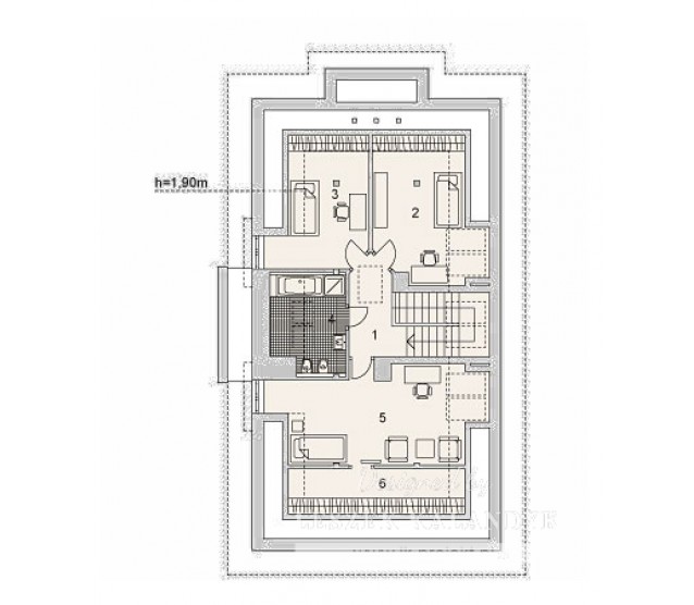
Attic


FULL SPECS & FEATURES
1. Usable area176,02 m²
2. Total surface311,92 m²
3. Building area155,9 m²
4. Net volume399,33 m³
5. Gross volume735,75 m³
6. Energy for heating10,55 kWh/m²*year
7. Building height8,32 m
8. Attic wall height1,4 m
9. Roof angle42 °
10. Roof area262 m²
11. Сeiling height2,70/2,60 m
12. Minimum plot size17,27 x 25,4 m


If you need more information, please feel free to contact us.
Email: vino@jncnhomes.com