Manors houses
LK&520
PLAN DESCRIPTION
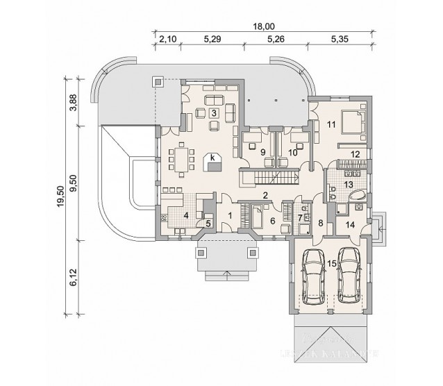
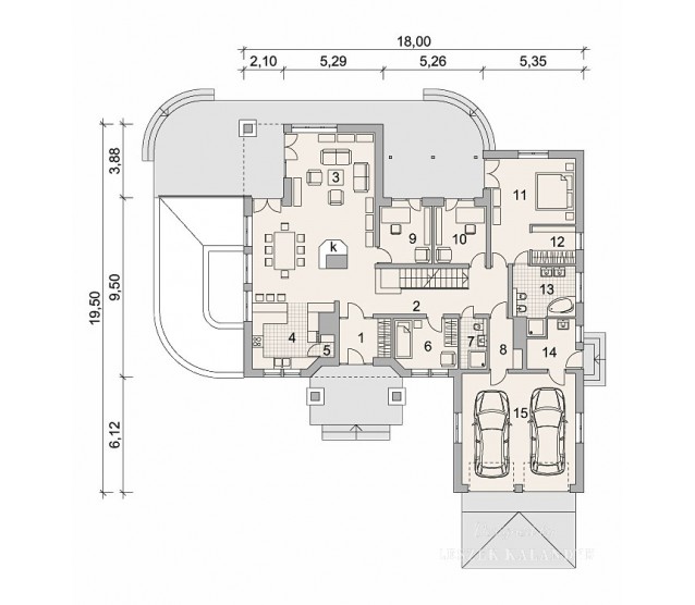
FLOOR PLANS

Basement

Ground floor

Attic


FULL SPECS & FEATURES
1. Usable area268,18 m²
2. Basement area119,89 m²
3. Area garage36,24 m²
4. Additional area5,64 m²
5. Total surface776,38 m²
6. Building area261 m²
7. Net volume1107 m³
8. Gross volume1556 m³
9. Energy for heating24,47 kWh/m²*year
10. Building height8,47 m
11. Attic wall height1,4 m
12. Roof angle42 °
13. Roof area412,77 m²
14. Сeiling height2,65 m
15. Minimum plot size28,85 x 29 m


If you need more information, please feel free to contact us.
Email: vino@jncnhomes.com