Barnhouses
LK&1616
PLAN DESCRIPTION
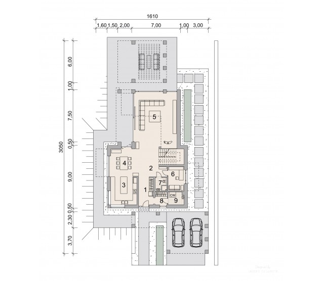
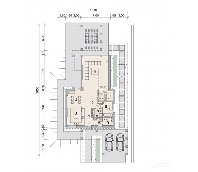
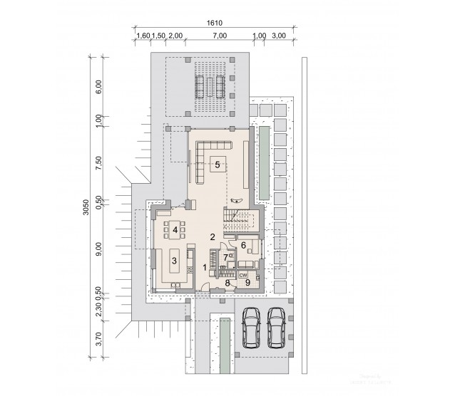
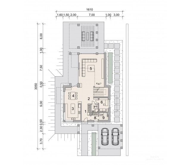
FLOOR PLANS

Ground floor

 Attic


FULL SPECS & FEATURES
1. Usable area202,74 m²
2. Total surface354,50 m²
3. Building area181,70 m²
4. Net volume808,56 m³
5. Gross volume1251,52 m³
6. Building height9,00 m
7. Roof angle41 °
8. Roof area232,27 m²
9. Сeiling height2,70; 3,50 m
10. Minimum plot size19,70 x 33,50 m


If you need more information, please feel free to contact us.
Email: vino@jncnhomes.com