Barnhouses
LK&1433
PLAN DESCRIPTION
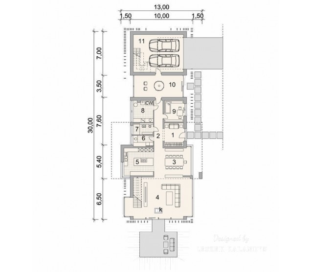
FLOOR PLANS

Ground floor

Attic


FULL SPECS & FEATURES
1. Usable area317,96 m²
2. Area garage41,46 m²
3. Total surface485 m²
4. Building area298,3 m²
5. Net volume1584,14 m³
6. Gross volume1639,95 m³
7. Building height9 m
8. Attic wall height1,28 m
9. Roof angle43 °
10. Сeiling height2,86 m; 3,30 m
11. Minimum plot size37 x 19,5 m


If you need more information, please feel free to contact us.
Email: vino@jncnhomes.com