ABOUT MODULAR STEEL FRAME
Modular Steel Frame
Built Offsite
Our Policies
HOME
JNCN STEEL CONSTRUCTION
TECHNOLOGY
BENEFITS
MODULAR HOMES
INSPIRATIONS -1
INSPIRATIONS -2
INSPIRATIONS -2
INSPIRATIONS -3
INSPIRATIONS -4
PORTFOLIO
CUSTOM DESIGN
HOUSE PLANS
PLUG AND PLAY HOMES
CUSTOM PROCESS
ABOUT US
CONTACT
United States / CN
Login
Traditional houses
LK&1586
PLAN DESCRIPTION
FLOOR PLANS
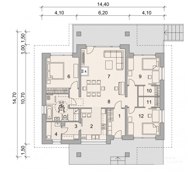
Ground floor
FULL SPECS & FEATURES
1. Usable area
124,91 m²
2. Total surface
m²
3. Building area
158,12 m²
4. Net volume
m³
5. Gross volume
m³
6. Building height
8,03 m
7. Roof angle
35 °
8. Roof area
289,78 m²
9. Сeiling height
m
10. Minimum plot size
19,70 x 22,40 m
If you need more information, please feel free to contact us.
Email:
vino@jncnhomes.com