ABOUT MODULAR STEEL FRAME
Modular Steel Frame
Built Offsite
Our Policies
HOME
JNCN STEEL CONSTRUCTION
TECHNOLOGY
BENEFITS
MODULAR HOMES
INSPIRATIONS -1
INSPIRATIONS -2
INSPIRATIONS -2
INSPIRATIONS -3
INSPIRATIONS -4
PORTFOLIO
CUSTOM DESIGN
HOUSE PLANS
PLUG AND PLAY HOMES
CUSTOM PROCESS
ABOUT US
CONTACT
United States / CN
Login
Traditional houses
LK&172
PLAN DESCRIPTION
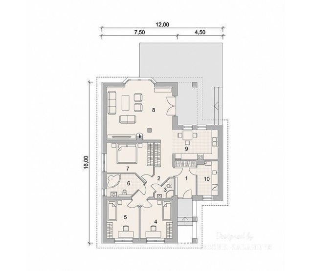
FLOOR PLANS
Ground floor
FULL SPECS & FEATURES
1. Usable area
121,59 m²
2. Total surface
155,18 m²
3. Building area
211 m²
4. Net volume
333,52 m³
5. Energy for heating
16,29 kWh/m²*year
6. Building height
7,37 m
7. Attic wall height
0,45 m
8. Roof angle
35 °
9. Roof area
260 m²
10. Сeiling height
2,66 m
11. Minimum plot size
19 x 25,4 m
If you need more information, please feel free to contact us.
Email:
vino@jncnhomes.com