Modern houses
LK&1121
PLAN DESCRIPTION
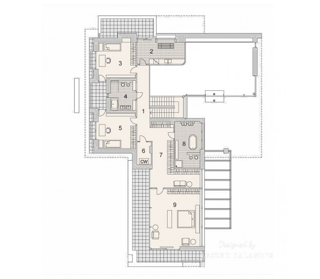
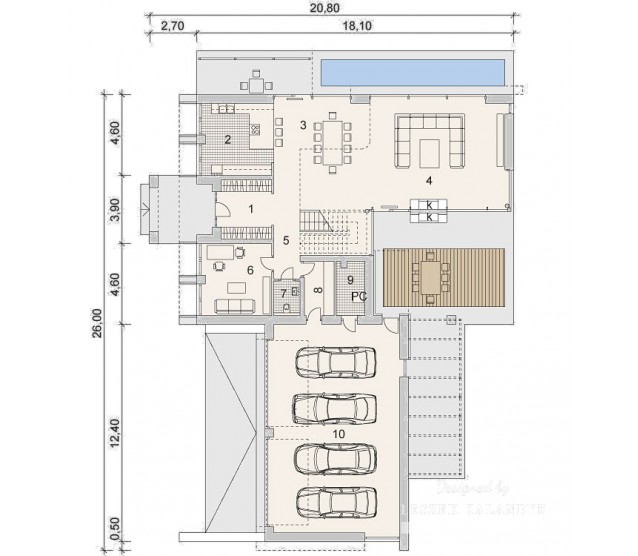
FLOOR PLANS

Ground floor

Floor


FULL SPECS & FEATURES
1. Usable area286,18 m²
2. Area garage85,78 m²
3. Additional area4,9 m²
4. Total surface825,34 m²
5. Building area343,81 m²
6. Net volume1302,3 m³
7. Gross volume2367,1 m³
8. Building height10,97 m
9. Roof angle25 °
10. Roof area425 m²
11. Сeiling height2,9 m
12. Minimum plot size27,8 x 33,5 m


If you need more information, please feel free to contact us.
Email: vino@jncnhomes.com