Ground floor

1. Wiatrołap4,25 m2
2. Korytarz5,57 m2
3. Garderoba6,76 m2
4. Łazienka4,77 m2
5. Schody5,70 m2
6. Spiżarnia4,78 m2
7. Pokój dzienny + kuchnia43,81 m2
8. Jadalnia22,43 m2
9. Pokój12,16 m2
10. Garaż dwustanowiskowy + kotłownia41,82 m2
11. Kotłownia3,08 m2
Razem155,13 m2
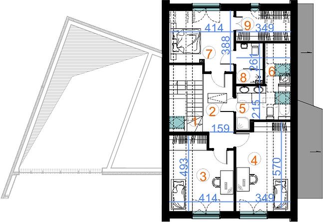
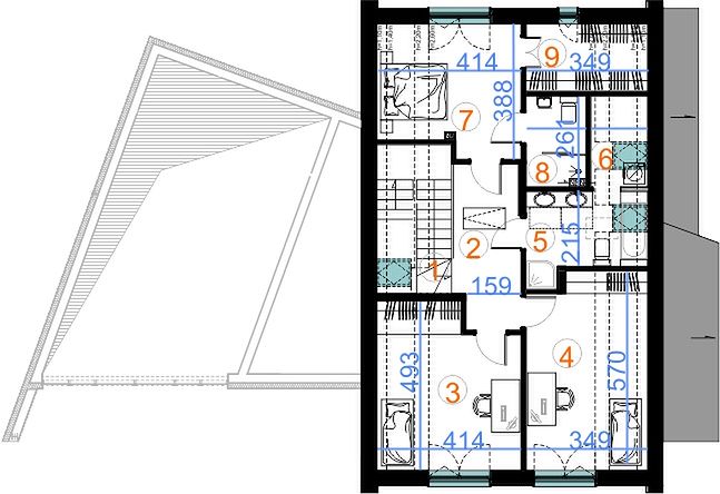
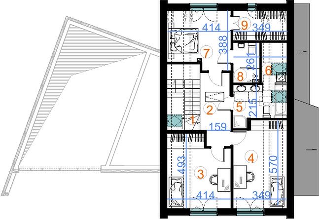
Attic

1. Schody1,28 m2
2. Korytarz8,93 m2
3. Pokój15,15 m2
4. Pokój15,14 m2
5. Łazienka6,58 m2
6. Pom. gospodarcze2,42 m2
7. Pokój12,32 m2
8. Łazienka4,52 m2
9. Garderoba5,40 m2
Razem71,74 m2
If you need more information, please feel free to contact us.
Email: vino@jncnhomes.com