Ground floor

1. Wiatrołap4,88 m2
2. Hall4,86 m2
3. Kuchnia7,95 m2
4. Spiżarnia1,76 m2
5. Pokój dzienny + jadalnia22,70 m2
6. Pokój9,44 m2
7. Łazienka3,49 m2
8. Garderoba + pomieszczenie gospodarcze5,95 m2
9. Pom. gospodarcze5,82 m2
10. Garaż jednostanowiskowy16,32 m2
Razem83,17 m2
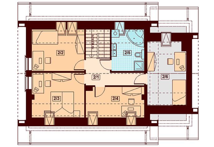
Attic

1. Korytarz6,82 m2
2. Pokój11,15 m2 (16,06 m2)
3. Pokój12,08 m2 (16,98 m2)
4. Pokój8,10 m2 (13,56 m2)
5. Łazienka6,95 m2 (10 m2)
6. Strych12,01 m2 (23,08 m2)
Razem57,11 m2 (86,50 m2)
If you need more information, please feel free to contact us.
Email: vino@jncnhomes.com