Main Level

2nd Floor

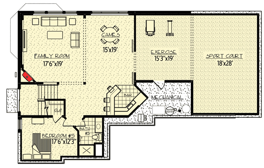
Lower Level

Total Heated Area:3,773 sq. ft.
1st Floor:1,658 sq. ft.
2nd Floor:2,115 sq. ft.
Sports Court:518 sq. ft.
Optional Lower Level:1,403 sq. ft.
Basement Unfinished:170 sq. ft.
Bedrooms:4 or 5
Full Bathrooms:3 or 4
Half Bathrooms:1
Standard Foundations:Walkout
Standard Type(s):2x6
Width:64' 0"
Depth:52' 0"
Max Ridge Height:35' 0"
Type:Attached
Area:784 sq. ft.
Count:3 cars
Entry Location:Front
Floor / Height:Lower Level / 8' 0"First Floor / 9' 0"Second Floor / 8' 0"
| Room | Type | Height |
|---|---|---|
| Entry | Raised | |
| Great Room | Raised | |
| Master Bedroom | Tray |
Primary Pitch:12 On 12
Secondary Pitch:16 On 12
Framing Type:Truss