Main Level

2nd Floor

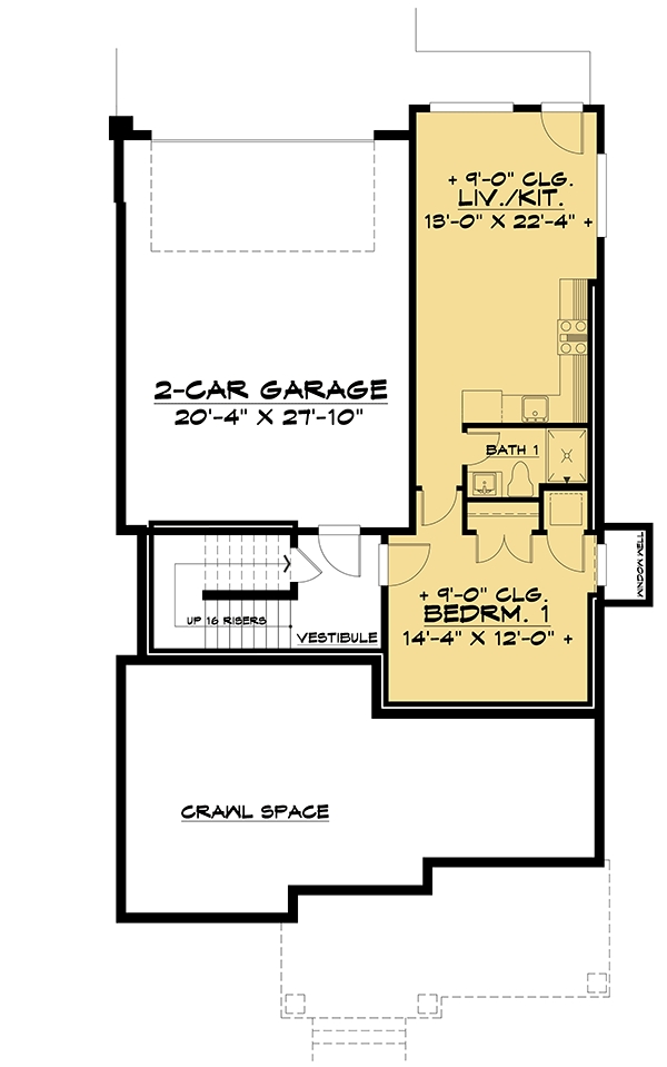
Lower Level


Total Heated Area:4,144 sq. ft.
Lower Level:690 sq. ft.
1st Floor:1,869 sq. ft.
2nd Floor:155 sq. ft.
Balcony / Veranda:274 sq. ft.
Deck:444 sq. ft.
Porch, Combined:188 sq. ft.
Bedrooms:5
Full Bathrooms:4
Standard Foundations:Crawl, Daylight, Slab
Standard Type(s):2x6
Width:35' 0"
Depth:69' 0"
Max Ridge Height:37' 1"
Type:Drive Under
Area:568 sq. ft.
Count:2 cars
Entry Location:Rear
Floor / Height:Lower Level / 9' 0"First Floor / 9' 0"Second Floor / 9' 0"
Primary Pitch:8 On 12
Framing Type:Truss