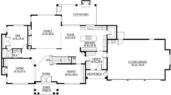
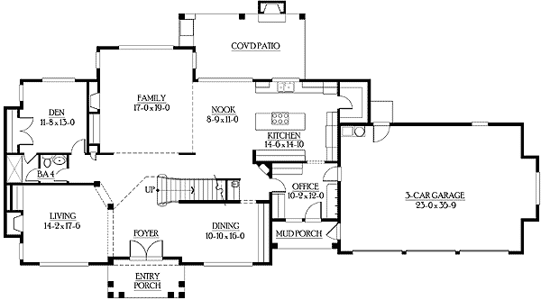
Main Level

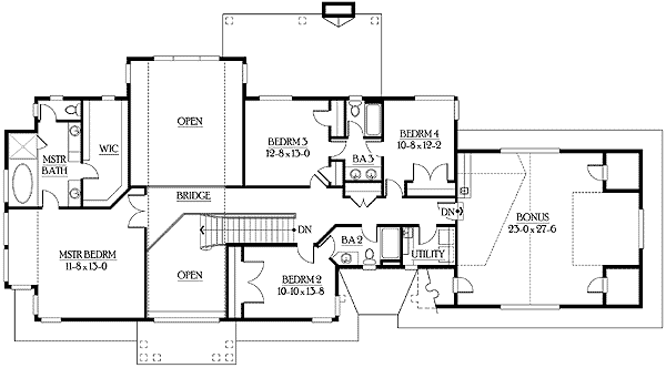
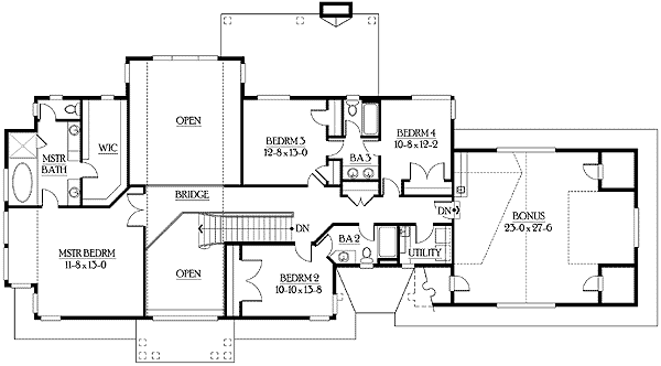
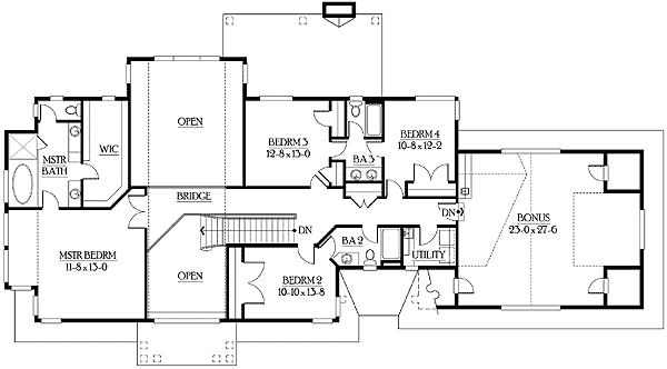
2nd Floor

Total Heated Area:4,487 sq. ft.
1st Floor:2,104 sq. ft.
2nd Floor:2,383 sq. ft.
Bedrooms:5
Full Bathrooms:4
Standard Foundations:Crawl
Standard Type(s):2x6
Width:98' 0"
Depth:55' 0"
Max Ridge Height:29' 0"
Type:Attached
Area:834 sq. ft.
Count:3 cars
Entry Location:Front
Primary Pitch:4 On 12
Secondary Pitch:9 On 12
Framing Type:Stick And Truss