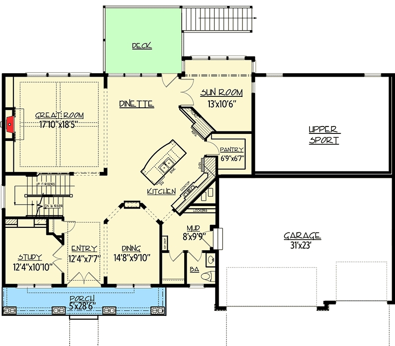
Main Level

2nd Floor

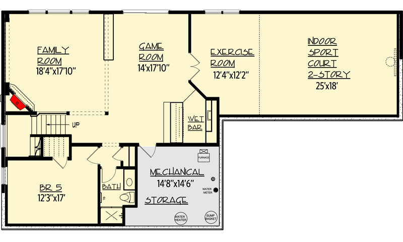
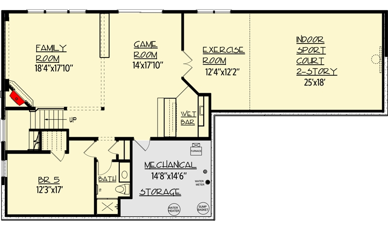
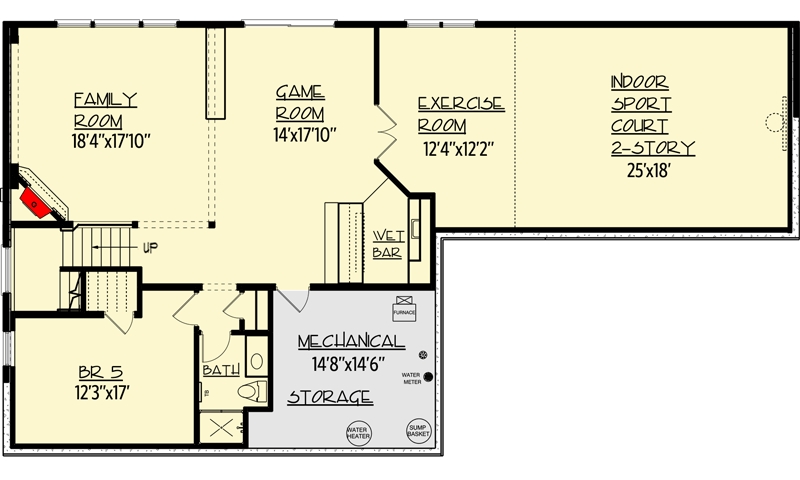
Lower Level

Total Heated Area:4,693 sq. ft.
Lower Level:1,363 sq. ft.
1st Floor:1,601 sq. ft.
2nd Floor:1,729 sq. ft.
Sports Court:450 sq. ft.
Porch, Front:143 sq. ft.
Basement Unfinished:217 sq. ft.
Bedrooms:4 or 5
Full Bathrooms:4
Half Bathrooms:1
Standard Foundations:Basement, Walkout
Width:70' 0"
Depth:45' 0"
Max Ridge Height:35' 0"
Type:Attached
Area:720 sq. ft.
Count:3 cars
Entry Location:Front
Floor / Height:Lower Level / 8' 8"First Floor / 9' 0"Second Floor / 8' 0"
| Room | Type | Height |
|---|---|---|
| Entry | Raised | |
| Great Room | Raised | |
| Master Bedroom | Raised | |
| Master Bath | 10' 0" |
Framing Type:Truss